My Store
2 BEDROOM CONTEMPORARY HOUSE PLAN – CN209AW
2 BEDROOM CONTEMPORARY HOUSE PLAN – CN209AW
Couldn't load pickup availability
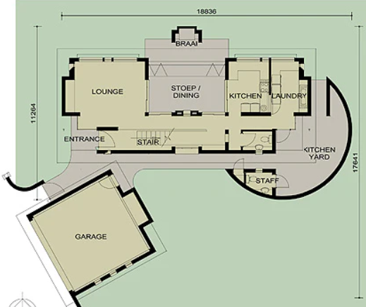
This is a medium size two-bedroom double storey house in a Contemporary style. All living areas and bedrooms have been designed to face north and capture maximum light in colder seasons. The double volume entrance leads from the double garage into the house at the open plan lounge, dining room / covered patio, kitchen and the guest toilet. The lounge and kitchen live onto the patio. The loung has a skylight and stack away doors that open onto the outside patio. The patio has a built in braai. The kitchen is huge and provides space for a kitchen table in the middle. There is also a stove, prep bowl, fridge, freezer and a laundry area with a double sink, dish washer, washing machine and a broom cupboard. A door from the kitchen leads to the circular kitchen yard and the staff toilet. The first floor comprises of the following:
– A studio with built in desktops.
– The main bedroom has built in cupboards, access to a northern and southern balcony and an en-suite bathroom. The bathroom has bath, shower, vanity top with a basin and a WC.
– The second bathroom has a bath, WC and a vanity top with a basin.
– The second bedroom has built in cupboards and access to a northern and southern balcony.
Share






